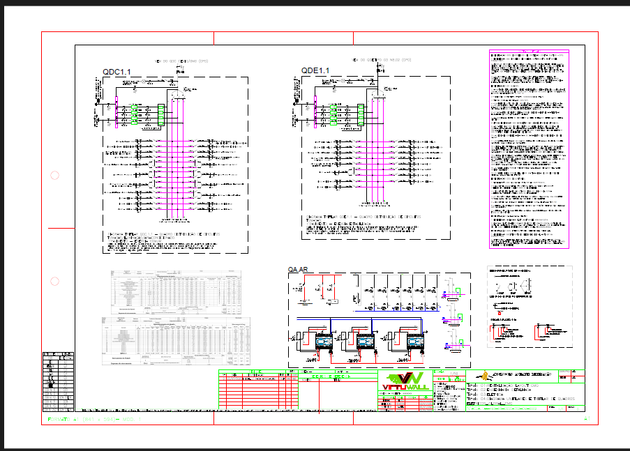
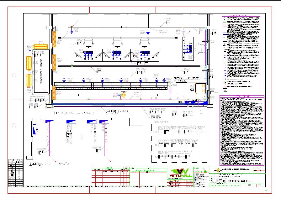
Revitalização e Novo Centro de Monitoramento em MG.
Estamos elaborando os projetos de instalações elétricas, cabeamento estruturado, sistemas hidráulicos, climatização e combate a incêndio para:
Revitalização do Centro de Monitoramento Geral (CMG) existente – 2º pavimento
Implantação do novo CMG – 1º pavimento
Local: Unidade MG
Parceria: VirtuWall

