Alojamento Núcleo 03 – (Inocência, MS)
A RWSProjetos está participando do desenvolvimento dos projetos de instalações elétricas e cabeamento estruturado do alo...
Revitalização e Novo Centro de Monitoramento em MG.
Estamos elaborando os projetos de instalações elétricas, cabeamento estruturado, sistemas hidráulicos, climatização e co...
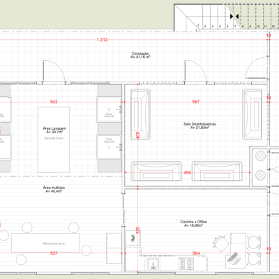
Nova Fábrica de Cogumelos (MG)
Iniciamos os projetos de instalações elétricas, cabeamento estruturado e sistema hidráulico da nova fábrica de cogumelos...
Empreendimentos (Lagoa Santa, MG)
Responsáveis pela elaboração completa dos projetos de instalações elétricas e cabeamento estruturado de um novo Empreend...
Residências de Alto Padrão (Grande BH e Nova Lima, MG)
Desenvolvimento de diversos projetos para residências de alto padrão em condomínios de luxo na região metropolitana de B...
Projetos com Metodologia BIM
A RWSProjetos vem atuando com projetos na metodologia BIM (Building Information Modeling), proporcionando mais eficiênci...
Consultoria Técnica em Planejamento de Obras – VM VIDROS
A RWSProjetos, juntamente com seu diretor e engenheiro responsável pelo setor de projetos e planejamento, está prestando...








